Maitrise d'ouvrage: privée
localisation: Rezé (44)
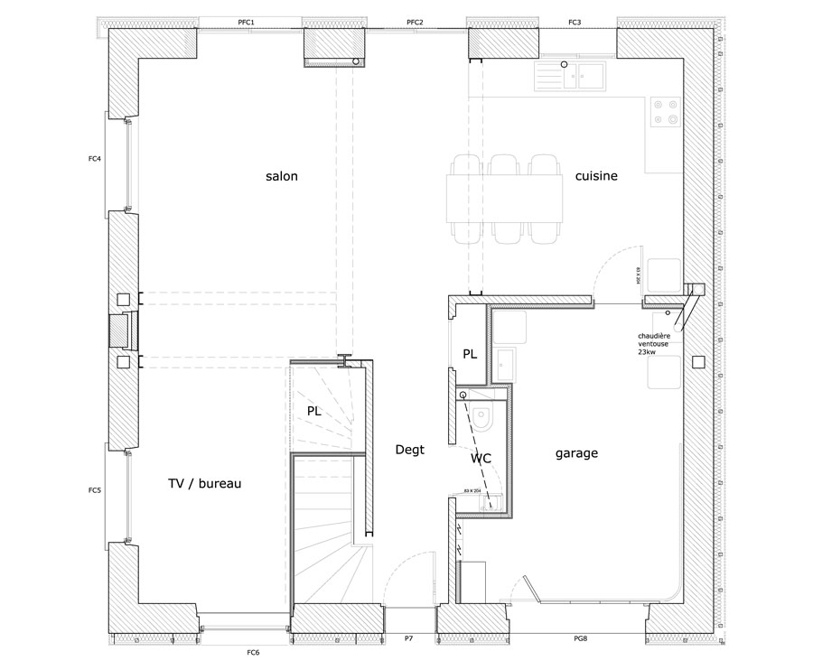
Programme: rénovation avec libération du RDC pour une maison "nantaise"
Travaux: frangements des refends et pose de poutres acier, isolation par l'extérieur (ITE), menuiseries aluminium, réhabilitation intérieure
Surface: SP: 170 m²
Maitrise d'oeuvre: Saillé & Aoustin
 
Rénovation conforme ANAH suivi par SOLIHA, RT2012 "existant" dit calcul par élément, TVA limitée pour les prestations d'amélioration thermique, ITE, bardage brut

Une grosse adaptation du RDC est nécessaire avec la suppression de 5 refends, la démolition / déplacement de l'escalier et la pose des 5 HEA (poutre d'acier) pour soutenir le plancher de l'étage.

Une isolation par l'extérieur sur les 3/4 des façades et la pose d'un plancher chauffant permet d'atteindre une amélioration de plus de 40% de la performance thermique de la maison autorisant le centre de l'habitat (SOLIHA) à valider le projet auprès de l'ANAH.