Maitrise d'ouvrage: Privée
localisation: Nantes, bas Chantenay (44)
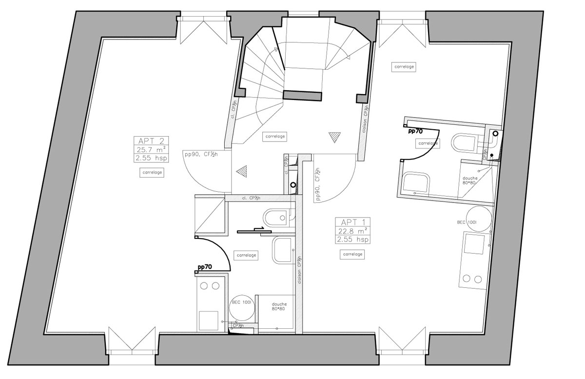
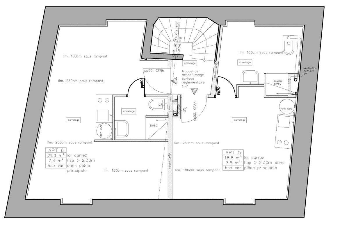
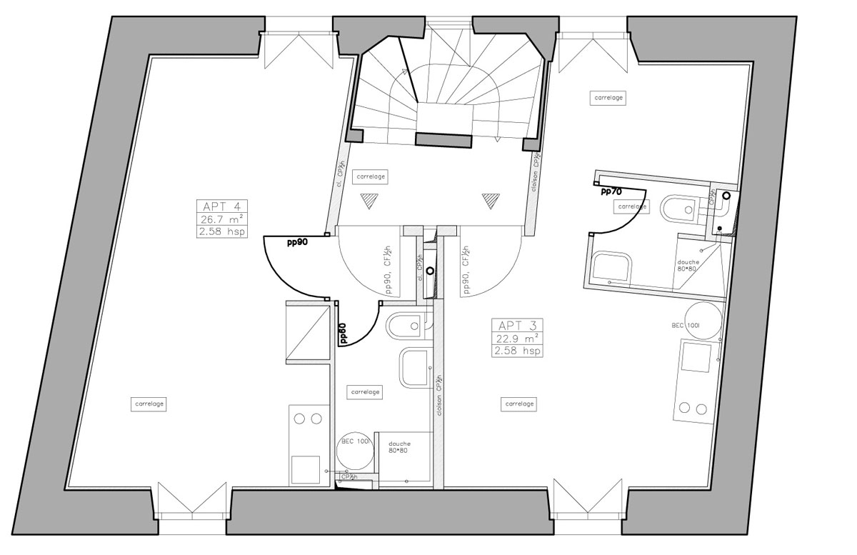
Programme: Réhabilitation globale et thermique complète pour créer 6 petits logements à la place des 11 chambres d'hôtel
Travaux: Reprise du Gros-oeuvre, partitionnement intérieur, vmc collective, sécurité incendie.
Surface: shon: 201m², S hab Carrez: 138m²
Maitrise d'oeuvre: Saillé & Aoustin
 
Rénovation subventionnée ANAH, RT2005, VMC collective

C'est grâce à l'intervention de l'Association Nationale d'Amélioration de l'Habitat, A.N.A.H. sur tout l'ilot vétuste du Bas-Chantenay, qu'un subventionnement pour la réhabilitation des existants a été programmé. Malgré une rationalisation des réseaux et une simplicité des plans, la subvention allouée au propriétaire s'est avérée insuffisante. Elle représente toutefois près de 60% du montant total TTC des travaux, apport non négligeable qui justifie le plafonnement des loyers imposé au propriétaire pendant 9 ans.