Maitrise d'ouvrage: | privée - SCI immobilière participative |
Localisation: | Blain (44) |
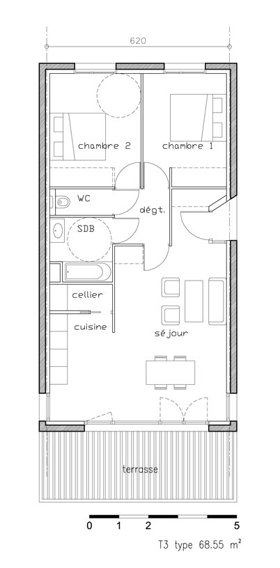
Programme: | 5 logements identiques considérés comme un collectif intégrant des lieux en partage. buanderie, atelier et chambre d'amis. Les 3 lieux partagés devront pouvoir être requalifiés en 1 logement. |
Travaux: | module maçonné, structure extérieure et bardage bois massif. |
Surface: | shon, 67m² x 5 |
Maitrise d'oeuvre: | Saillé & Aoustin & Bacon |
BBC, isolation extérieur, compacité maximale et bioclimatisme. éléments extérieurs en bois massif. |
---|
Le plan masse n'a malheureusement pas permis d'installer 5 logements différents typologiquement. Le choix s'est donc orienté vers un module identique mais adaptable aux souhaits des habitants dans le respect des budgets. Les locaux communs complémentaires buanderie / local vélos / bricolage / chambre d'amis, utilisent le volume d'un module du bloc central au RDC. Ce module devant être revendable en appartement en cas de besoin.
Les aléas administratifs ont eu raison de la motivation de 2 familles et donc du modèle. Il est donc libre pour l'adapter à un autre cas de figure.